Avatar
3 months ago • Public • Project • Forwardable
Bookarcho Official
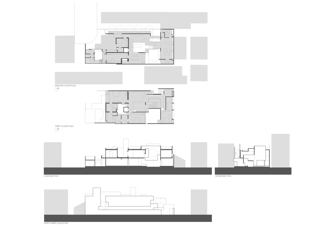
modern kerala

The President Valdas Adamkus Athletics Arena in Kaunas, Lithuania, extends the existing Dariaus and Girėno Stadium complex, forming a cohesive athletics campus for high-performance sport, community use, and long-term resilience. Designed by Lithuanian studio ARCHAS, the new indoor arena consolidates competition and training facilities within a compact, efficient envelope that responds to the site’s spatial constraints and the environmental ambitions of the original design competition. The President Valdas Adamkus Athletics Arena in Kaunas, Lithuania, extends the existing Dariaus and Girėno Stadium complex, forming a cohesive athletics campus for high-performance sport, community use, and long-term resilience. Designed by Lithuanian studio ARCHAS, the new indoor arena consolidates competition and training facilities within a compact, efficient envelope that responds to the site’s spatial constraints and the environmental ambitions of the original design competition. The President Valdas Adamkus Athletics Arena in Kaunas, Lithuania, extends the existing Dariaus and Girėno Stadium complex, forming a cohesive athletics campus for high-performance sport, community use, and long-term resilience. Designed by Lithuanian studio ARCHAS, the new indoor arena consolidates competition and training facilities within a compact, efficient envelope that responds to the site’s spatial constraints and the environmental ambitions of the original design competition.

Project Details
Architects
X 1 V
Location
THODUPUZHA
Category
RESIDENTIAL
Type
CONSTRUCTION
Area
12000
Budget
1111324
Client
JIHAN
Photography
NANTHAN
#kerala #residences
massiveness

The President Valdas Adamkus Athletics Arena in Kaunas, Lithuania, extends the existing Dariaus and Girėno Stadium complex, forming a cohesive athletics campus for high-performance sport, community use, and long-term resilience. Designed by Lithuanian studio ARCHAS, the new indoor arena consolidates competition and training facilities within a compact, efficient envelope that responds to the site’s spatial constraints and the environmental ambitions of the original design competition.