Avatar
3 months ago • Public • Project • Forwardable
Bookarcho Official
Two Bloks

The atmosphere grows more mysterious as one looks at the slightly opaque glass door, where only faint contours can be seen beyond. A mysterious blue and purple light seeps out. What awaits at the end of the tunnel remains for a future tenant to decide.

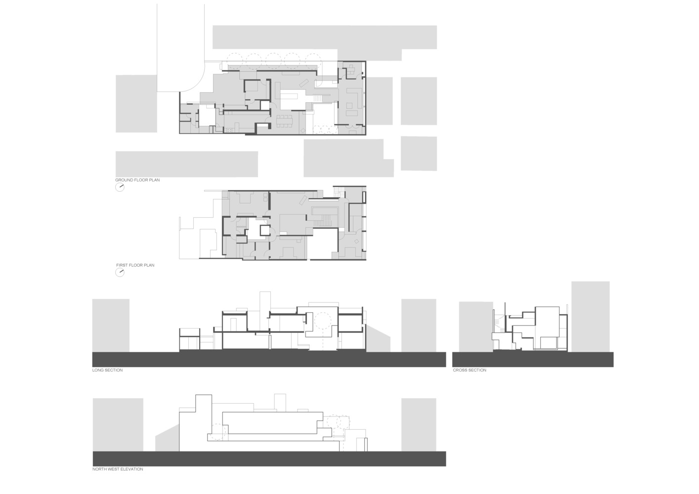
Project Details
Architects
TWO STONES
Location
THIRUVALLA
Category
RESIDENTIAL
Type
CONSTRUCTION
Area
5400
Budget
3455000
Client
ANN EEDA
Photography
TOMCY BENNY
#modern #residential #contemporary